ČETRTNA SKUPNOST CENTERMESTNE OBČINE lJUBLJANA Štefanova 9 telefon: 252 75 07 faks: 252 75 08 e-pošta: mol.center@ljubljana.si |
|
| PREDSTAVITEV | |
| STATUT | |
| POVABILO | |
| PREDSTAVNIKI ČS | |
| PREGLED DOGODKOV | |
| ZAPISNIKI | |
| PROGRAMI DELA | |
| POBUDE MOLu | |
| POROČILO O DELU | |
| ČRNE TOČKE | |
| PROMET | |
| PRIDOBITVE | |
| NAČRTOVANI POSEGI | |
| NAZAJ NA ZAČETEK | |
![]() ![]() ![]() ![]() ![]() ![]() ![]() ![]() ![]() |
|
| Po prenovi Cankarjevega nabrežja so julija 2017 začeli prenavljati še Gallusovo nabrežje in ga končali novembra. |
|
![]() |
|
| Postajališče LPP Gornji trg na Karlovški cesti je bilo preozko, zato so ga ob prenovi Gallusovega nbr. razširili. |
|
![]() ![]() |
|
| Po prenovi Slomškove so se v letu 2017 lotili še prenove Kotnikove in Metelkove. |
|
![]() ![]() ![]() ![]() ![]() |
|
| Junija 2017 so pričeli prenavljati Šmartinsko cesto. |
|
![]() ![]() |
|
|
Sredi leta 2017 so prenovili križišče Resljeve s Petkovškovim nbr. in
uredili nov prehod s semaforjem za pešce. Lahko bi s severne strani na
sredini zarisalipuščico za vožnjo naravnost in prehod za pešce na Petkovškovem nbr. |
|
![]() ![]() ![]() ![]() ![]() ![]() ![]() ![]() ![]() ![]() ![]() ![]() |
|
| Sredi leta 2015 so začeli postavljati spomenik spravi v parku Zvezda, ki so ga odkrili julija 2017 |
|
![]() ![]() ![]() ![]() |
|
| Švicarijo v Tivoliju so izpraznili in v letu 2017 prenovili za umetniške ateljeje. | |
![]() ![]() ![]() ![]() ![]() ![]() ![]()
|
|
| V letu 2017 so pričeli s prenovo Gosposvetske ceste. |
|
![]() ![]() |
|
| V letu 2017 je Četrtna skupnost Center končno dobila dobro založeno tehnično trgovino. |
|
![]() ![]() |
|
| Promet ladjic na Ljubljanici se je močno povečal, zato s v letu 2017 postavili nekaj znakov. |
|
![]() ![]() ![]() |
|
| V letu 2017 so odstranili zid na križišču Masarykove in Resljeve in uredili park. |
|
![]() ![]()
|
|
| Za "Šumijem" je v letu 2017 zrasla nova zgradba |
|
![]() ![]() ![]() ![]() ![]() ![]() ![]() ![]() ![]() ![]() |
|
| Septembra 2016 so pričeli s prenovo Male ulice. V letu 2018 bodo nadaljevali s prenovo Prečne in Trubarjeve ulice. |
|
![]() |
Križišče Vilharjeve z Dunajsko so jeseni 2016 preuredili v polno z možnostjo zavijanja levo. |
![]() ![]() |
Pri Osnovnoi šoli Ledina so poleti 2016 uredili novo otroško igrišče. |
![]() ![]() ![]() ![]() |
|
| Poleti 2016 so pričeli s celovito prenovo stopnišča pred Frančiškansko cerkvijo. |
|
![]() |
Julija 2016 so pred pravoslavno cerkev postavili spomenik Vuku Karadžiću. |
![]() ![]() ![]() ![]() |
|
| Julija 2016 so pričeli prenavljati Šubičevo ulico in čez eno leto končali. |
|
![]() ![]() ![]() |
|
| Sredi
leta 2016 so začeli urejati klančino na koncu Jenkove ulice na
Šmartinsko. |
|
![]() ![]() ![]() ![]() ![]() ![]() ![]() ![]() |
|
| Pred
leti je ČS Center opozorila na zaporo javne površine - Pražakove ulice
med Cigaletovo in Slovensko za zasebno parkirišče, potem pa tudi na
neurejeno javno parkirišče. Sredi leta 2016 so poleg Pražakove, začeli prenavljati tudi celotno Slomškovo ulico. |
|
![]() ![]() |
|
| Okolica Metelkove je bila močno zanemarjena. V začetku leta 2014 so jo končno malo uredili in pri tem odprli ša parkirišče. | |
![]() ![]() ![]() |
|
| !5.4.2016 so ob notranjem cestnem obroču na Roški odkrili spomenik ahitektu Maksu Fabianiju. |
|
![]() ![]()
|
|
| V začrtku leta 2016 so začeli na jugo-zahodnem delu grajskega griča urejati vinograd. |
|
![]()
|
|
| Namesto malega vlakca je marca 2016 na Grad začel voziti velik električni zglobni avtobus. |
|
![]() ![]() ![]()
|
|
| Pred Namo so konec leta 2007 uredili prijeten javni kotiček. Ob prenovi Slovenske ceste v letu 2015, so tudi tega spremenili v gostinski vrt. V letu 2016 načrtujejo pred njim postaviti novo vodno skulpturo - fontano. | |
![]() ![]() ![]() ![]() ![]() ![]() ![]() ![]() ![]() ![]()
|
|
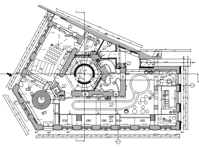
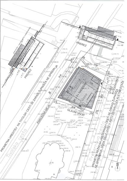
| Srbski
holding Delta je v začetku leta 2014 začel gradnjo hotela
Intercontinental Ljubljana, prvega hotela s petimi zvezdicami v
prestolnici. Hotel, ki bo stal na Bavarskem dvoru, bo imel po napovedih
21 nadstropij, vrednost investicije pa naj bi bila 42 milijonov evrov.
Gradil ga bo novomeški CGP, vrata naj bi odprl leta 2017.
|
|
![]() ![]() ![]() ![]() ![]() ![]() ![]() ![]() ![]() ![]() |
|
|
Sredi leta 2015 je pričela tudi prenova vzhodnega dela Cankarjeve
ceste, ki je že dolgo čakala na prenovo. Postala naj bi del promenade
od Magistrata do Tivolija z le
dvema prehodoma za avtomobile na Bethovnovi in Prešernovi. Seveda je
potrebno ob tem izbojšati in popestriti ponudbo trgovin ob promenadi in
podaljšati njihov delovni čas. |
|
![]() ![]() ![]() ![]() ![]() ![]() |
|
| Konec leta 2014 so pričeli urejati pristanišče na Gruberjevem kanalu, a po mnenju mnogih pre široko. |
|
![]() |
|
| Špico so lepo uredili. V letu 2015 so končno odprli manjši gostinski objekt, katerega najemnik bo upravljal z baliniščem in sanitarijami, ki so že zgrajene. | |
|
|
| Na bregu so v začetku leta 2015 začeli urejati sanitarije. | |
![]() ![]() ![]() |
|
| Septembra 2014 so pričeli obnavljati poškodovano stopnišče pred Tivolskim gradom in ga dokončali novembra. | |
![]() ![]() ![]() |
|
|
Ker na peščevih površinah ni označenih kolesarskih stez, nastajajo
stalni konflikti med kolesarji in pešci. Kolesarje je potrebno ločiti
tako od motornega prometa, kot od pešcev. V Tivoliju se vozijo celo z
mopedi. Poleti 2014 so začeli delati ločeno stezo za kolesarje skozi Tivoli, ki so jo odprli v tednu mobilnosti septembra 2014. |
|
![]() ![]() ![]() |
|
| Konec leta 2014 so odstranili kipe z Mestne hranilnice in jih obnovljene 2016 postavili nazaj |
|
![]() ![]() ![]() ![]() ![]() ![]() ![]() ![]() ![]() ![]() ![]() ![]() |
|
| Junija
2014 so pričeli s prenovo Cankarjevega nbr. in izgradnjo nove Ribje
brvi, čeprav je mnogo drugih nabrežij, ulic in trgov bolj potrbnih
prenove. Izravnali so cestišče s pločnikom. Nove razgledne ploščadi so
že zavzeli gostinci, nekatere javne klopi pa so odstranili, da so lahko
postavili gostinske mize. |
|
![]() ![]() ![]() ![]() |
|
| V letu 2011 je zgornja ploščade Trga Republike končno prešla v last
MOL. V letu 2014 so pričeli s prenovo trga, ki bo brez parkirišča. Otvoritev je bila 24. 9. 2014. |
|
![]() ![]() ![]() |
|
| V letu 2014 so pričeli in 2015 prenovili tudi Narodno galerijo. | |
![]() ![]() |
|
| Na razcepu Njegoševa in Šmartinske ceste so sredi leta 2014 uredili manjši park s spomenikom Njegošu. |
|
![]() |
V začetku leta 2014 so prenovili otroško igrišče na Prulah. |
![]() |
Zožanje Bohoričeve ulice so v letu 2014 delno odpravili, saj je mesto odkupilo hišo, ki so jo odstranili. |
![]() |
Jeseni 2013 so na grajskem griču uredili trim otok. |
![]() ![]() ![]() |
|
| V parku
na Novih Poljanah so v letu 2013 na račun četrtne skupnosti postavili
še tri fitnes naprave. 2015 pa še v parku Reformacije. |
|
![]() |
Na Špici so postavili železno skulpturo. |
![]() |
Junija 2013 so postavili še en pitnik. Tokrat v obliki kenguruja na Krekovem trgu. |
![]() |
Na osnovni šoli Majde vrhovnik so poleti 2013 zgradili dvigalo za gibalno ovirane osebe. |
![]() |
V starem mestnem jedru so že v letu 2012 pričeli nameščati viseče rože na luči. |
![]() ![]() ![]() ![]() ![]() ![]() ![]() |
|
| Julija
2013 so pričeli z gradnjo drugega dela garažne hiše za Kozolcem. Upajmo, da bodo upoštevali predlog četrtne skupnosti in povezali garažo z mestno knjižnjico. V letu 2014 je gradnja zastala. Ponovno pričeli z gradnjo poleti 2016. |
|
![]() ![]() |
Na
križišču Pražakove in Cigaletove ulice so oktobra 2013 na pobudo
četrtne skupnosti popravili pločnik. Žal so na enem delu ponovno
uporabili beton namesto robnika. |
![]() ![]() ![]() ![]() ![]() ![]() ![]() ![]() ![]() ![]() ![]() ![]() ![]() ![]() ![]() ![]() ![]() ![]() ![]() ![]() |
|
|
11. marca 2013 so po načrtih arhitekta Jurija Kobeta začeli prenavljati
Petkovškovo nbr. Zahodni del je že prenovljen in predan prvemu
gostinskemu lokalu. Več na http://www.ljubljana.si/si/mol/novice/81359/detail.html |
|
![]() ![]() ![]() ![]() ![]() ![]() |
|
| Od leta 2012 Novi trg ni več namenjen parkiranju. Marca 2013 so ga
začeli prenavljati, junija pa so že tlakovali skoraj polovico trga. |
|
![]() ![]() ![]() ![]() ![]() ![]() ![]() ![]() ![]() ![]() |
|
|
Konec septembra 2012 so pričeli prenavljati Čopovo ulico z izgradnjo
potopnih smetnjakov, 22. aprila 2013 pa tudi ostalo. V začetku junija
so začeli polagati granitne plošče v obliki ribje kosti, possadili
drevo in postavili pitnik. Oktobra so začeli prenavljati še gledališko
pasažo. |
|
![]() ![]() ![]() ![]() ![]() ![]() ![]() |
|
| V
letu 2013 so pričeli s prenovo brvi preko Gruberjevega kanala in
dolenjske železnice v podaljšku Streliške. Hkrati so začeli prenavljati
vodovod in kanalizacijo po poti na Golovec. |
|
![]() ![]() |
|
| Proti koncu leta 2012 so pričeli s celovito komunalno prenovo Rozmanove ulice, ki se sredi leta 2013 končuje. |
|
![]() |
|
|
Ob rekonstrukciji Ceste za gradom, so neprimerno zaključili staro
cesto. Na pobudo četrtne skupnosti so pomladi 2013 asfaltirali novo kolesarsko stezo. |
|
![]() ![]() |
|
| Na Ambroževem trgu so na pobudo četrtne skupnosti uredili javno razsvetljavo. |
|
![]() ![]() |
|
|
Nekatere reklamne vitrine ob Slovenski cesti 38 razpadajo. Konec leta
2012 so jih pričeli obnavljati in v začetku leta 2013 obnovili. |
|
![]() ![]() |
|
|
Na Mali ulici so uredili parkirišče za prebivalce. Kljub temu so
nekateri še vedno parkirali na pločniku pred izložbo. Problem so rešili
s postavitvijo klopc in ne s postavitvijo količkov, ki jih je že
preveč. Podobno rešitev bi lahko udejanili tudi prebivalci Poljanske
ceste 15 za preprečitev parkiranja pred pekarno. Žal sta dve klopci kmalu izginili in avtomobili spet parkirajo pred izložbo. |
|
![]() |
|
|
Ob koncu leta 2012 so po dolgem času odprli v Četrtni skupnosti Center
novo manjšo trgovino s prehrano v objektu bivše banke, ki so ga začeli
prenavljati v hotel Tresor. Pomladi 2013 so hostel tudi odprli. |
|
![]() |
|
| Oktobra 2012 so pričeli z obsežnejšo prenovo poti ob Miklošičevem parku. Uredili so tudi dvignjen prehod za pešce preko Dalmatinove. Na pasu za avtobuse je grbina sicer moteča. | |
![]() |
|
| Pred Kinodvor so septembra 2012 uredili manjše otroško igrišče. Ob zaključku projekta Društva ProstoRož "Zemljevid želja", ki je potekal lani v okviru festivala MLADI LEVI je župan Zoran Janković obljubil, da bo uresničil željo, ki je bila največkrat zapisana na Zemljevidu želja: Otroško igrišče. Letošnjo jesen smo dobili kar dve prijetni otroški igrišči. Prvo pri Hotelu Park na Taboru in drugo na Kolodvorski ulici pred Kinodvorom. |
|
| Mestna občina Ljubljana je 26. aprila 2012 s Telekomom Slovenije in NIL-om podpisala pogodbo o javno zasebnem partnerstvu za projekt izgradnje in uvedbe brezžičnega omrežja Wi-Fi na območju Mestne občine Ljubljana, s katerim bomo Ljubljančanke in Ljubljančani dobili v uporabo novo brezžično širokopasovno omrežje za dostop do interneta. Na Trubarjevi so tako postavili nekaj kovinskih stebrov, na nekaterih pa je preveč znakov saj so postavljeni na območju za pešce, manjka pa napis za Prečno ulico. | |
![]() |
|
| Septembra 2012 so pričeli prenavljati dotrajano ograjo na Bregu, kjer so včasih bile svetilke z zmaji. | |
![]() ![]() ![]() ![]() |
|
| V letu 2012 so začeli rušiti staro Napoleonovo kasarno za potrebe nove Medicinske fakultete |
|
![]() ![]() |
|
| Zaradi intervencijske sanacije dela kanalizacijskega omrežja so avgusta 2012, za ves promet zaprli Dalmatinovo ulico med Miklošičevo cesto in Kolodvorsko ulico. Po ureditvi in asfaltiranju, je ponovno uveden t.i. rumeni pas za avtobuse in postaja Turist pred City hotelom. Žal niso pri novogradnji poravnali cestišče. V letu 2014 so poravnali cestišče in ker je gradnja hiše zastala, so prenovili pločnik in ga odprli | |
| Avgusta 2012 so asfaltirali vozišče Rozmanove ulice med Trubarjevo cesto in Ilirsko ulico, vključno s križiščema. Žal pa je ostala enosmerna, tako, da morajo vozniki z Ledine do Poliklinike in nazaj na Ambrožev trg. Tudi Trubarjevo so namesto, da bi podrli neugledne stavbe in jo razširili, spremenili v enosmerno. | |
| Na Prešernovem trgu - Hribarjevem nbr. so na pobudo četrtne skupnosti v letu 2012 popravili asfalt, ki je imel izbokline. | |
![]() |
|
|
1. junija 2011 so odkrili kip Gustavu Mahlerju, ki je deloval tudi v
Ljubljanski filharmoniji v neposredni bližini spomenika. 22. junija 2012 so pred Kazino postavili doprsni spomenik plesnemu mojstru in učitelju Jenku. |
|
![]() |
|
| Julija
2012 so končali prenovo Mačje steze in Poti za ograjami z ograjo v
kateri je tudi razsvetljava. Križišče Mačje steze in Poti za ograjami
so tudi tlakovali. |
|
![]() |
|
| V letu 2012 so dokončali telovadnico pri osnovni šoli Vodmat. |
|
![]() |
|
| Pri Waldorfski osnovni šoli na Streliški, so pričeli v začetku leta 2010 graditi prizidek, ki so ga dokončali 3. 9. 2012. | |
|
V začetku leta 2012 so zaprli Vegovo in okoliške ulice, kamor imajo
sedaj dostop le prebivalci. Marca so prenovili del Tomšičeve ulice med Slovensko in Bethovnovo. |
|
![]() |
|
| Po večletnem opozarjanju, so le zamenjali začasne semaforje na Prulah s stalnimi. | |
| V začetku leta 2012 so uredili novo dostopno pot od avtobusne postaje na Tivolski cesti do Jakopičevega sprehajališča oz. do Cankarjeve ulice. | |
![]() |
|
| Na predlog četrtne skupnosti so v začetku leta 2011 na Karlovški cesti pred mostom postavili semafor za pešce za lažji dostop z Gallusovega na Grudnovo nabrežje, konec leta pa prav tako na pobudo četrtne skupnosti še klančino z Gallusovega nbr. do Karlovške ceste. | |
![]() |
|
| Decembra 2011 so sanirali Ribjo brv med Tromostovjem in Čevljarskim mostom. | |
| Septembra 2011 so začeli z izkopavanji v parku ilegalca in v začetku leta 2012 postavili potopne smetnjake. Ulico bi morali od tu naprej zapreti, saj avtomobili parkirajo tudi na ploščadi Ajdovščina. | |
![]() ![]() ![]() ![]() ![]() ![]() |
|
| V
bivšem kopališču na Ajdovem zrnu so avgusta 2011 začeli urejati otroške
igralnice. Konec meseca decembra 2012 je novo mestno igrišče zasijalo v
vsej svoji lepoti. Septembra 2013 so začeli urejati še zunanje igrišče. |
|
![]() |
|
| V letu 2009 so popolnoma prenovili zgradbo na Križevniški 1, v kateri je dobil svoje prostore Mini teater. Več na www.mini-teater.si Septembra 2011 so ulico še ozelenili. |
|
![]() ![]() |
|
| Končno so se lotili prenove Tavčarjeve hiše na Bregu 8 in jo poleti 2012 tudi dokončali. | |
![]() ![]() ![]() ![]() ![]() ![]() ![]() ![]() ![]() ![]() ![]() |
|
| Na
Prulah 9 so leta 2011 porušili staro zgradbo in gradijo novo. V letu 2012 opravili arheološka izkopavanja. Na Prijateljevi 5 so po dolgih razpravah v letu 2012 porusili staro vilo. Tudi na Grudnovem nbr. 1 so pomladi 2013 porušili del stare zgradbe. |
|
|
Prenova nabrežja Ljubljanice ob
Grudnovem nabrežju. |
|
![]() ![]() ![]() |
|
| Nabrežje med novim Hradetskega mostom (starim mrtvaškim mostom) in Prulskim mostom so leta 2011 temeljito prenovili brez betona. Mogoče manjka ograja. | |
![]() |
|
| Ljubljanska banka je odprla nov prehod med Čopovo in Knafljevim prehodom. | |
![]() ![]() |
|
| V Knafljevem prehodu načrtujejo manjše pozidave. Gostilna As že gradi nove prostore. | |
![]() ![]() ![]() ![]() ![]() |
|
|
Rimsko in Peternelovo ulico temeljito prenavljajo. Na novo so
preplastili tudi Žabjak in Poljanski nasip. Pri vseh prenovah bi lahko
zasadili več dreves, kot npr. na Rimski. V letu 2011 so končali prenovo Mestnega, Starega in Gornjega trga. Že leto prej so pričeli postavljati nove pitnike. |
|
|
|
|
| Z mnogih pročelij visi množica kablov, ki sodijo pod zemljo. Na križišču Resljeve in Petkovškovega nbr. so jih odstranili. | |
| Ob gradbišču na Resljevi so nastali vrtički, ki jih obdelujejo okoliški prebivalci. | |
![]() |
|
| Spomladi 2011 so začeli nameščati nova stojala za kolesa za posojo. Več na http://www.bicikelj.si/ | |
![]() ![]() ![]() ![]() |
|
| V Tivoliju so jeseni 2010 obnovli dotok v ribnik, v zameno za posekano rdečelistno bukev pri Operi pa v začetku leta 2011 sanirali sam ribnik. | |
![]() ![]() |
|
| Klopi v Tivoliju je premalo, tudi ob ribniku so včasih bile. Spomladi 2009 so jih spet postavili. Leta 2011 so ga ponovno obnovili. | |
![]() |
|
| Bencinski
servis na Župančičevi ulici je bil utesnjen in so ga zaprli pred rušenjem Kolizeja. V Četrtni
skupnosti Center je tako ostal le bencinski servis pri garažni hiši na
Ambroževem trgu in na Tivolski. 1. 10. 2014 so tudi bencinski servis na Ambroževem trgu zaprli. |
|
![]() |
|
| Zapornica za stavbo Ljubljanske banke je onemogočala dostop z vozički z Erjavčeve do Doma Ivana Cankarja. V začetku leta 2011 so na pobudo četrtne skupnosti skrajšali zapornico in s tem omogočili prehod s kolesi in otroškimi vozički. | |
![]() ![]() ![]() ![]() ![]() ![]() ![]() ![]() ![]() ![]() |
|
| Pod Kongresnim trgom so v začetku leta 2009 začeli graditi garažno hišo. Najprej so seveda začeli z arheološkimi izkopavanji. Na fotografiji se vidi zaklonišče, ki so ga zgradili še Italijani. Glasbeni pavilijon z mesta ob hrupni Slovenski cesti so prestavili na bolj umirjen južni del. Konec meseca junija 2011 je bila slavnostna otvoritev garažne hiše. | |
![]() ![]() ![]() ![]() ![]() ![]() ![]() ![]() ![]() |
|
| Konec
leta 2009 so zgradili začasno brv pri Mrtvaškem mostu, v začetku leta
2010 pa so začeli odstranjevati očiščeno konstrukcijo Hradetskega
mostu, ki ga bodo
po obnovi že trtjič prestavili, tokrat na Prule. Včasih je bil na
mestu današnjega Čevljarskega mostu. Začasno brv so sredi leta 2014
prestavili 100 m proti zahodu in jo poimenovali Lipičeva brv. ob njej
so še prej namestili ratgledno ploščad, ki so jo odstranili s
Petkovškovega nbr. |
|
![]() ![]() ![]() ![]() ![]() |
|
| Nekdanji Čevljarski most, ki so ga prenesli k mrtvašnici, so v letu 2010 tretjič prestavili na Prule. | |
![]() ![]() ![]() ![]() ![]() ![]() |
|
| Del Cukrarne, kjer naj bi bila upravna zgradba, so septembra 2009 podrli in skozi njo speljali novo vzhodno notranjo obvoznico in naprej preko dvonadstropnega mosta nad Ljubljanico - Fabianiev most, ki so ga dokončali v letu 2012. Ob tem načrtujejo še rušenje stare Napoleonove kasarne, danes Dekanata in knjižnjice Medicinske fakultete in na njenem mestu nadomestno gradnjo. Preplastili so tudi Poljanski nasip in uredili nabrežje ob Vrazovem trgu. | |
![]() ![]() ![]() ![]() |
|
|
Novembra 2009 so pričeli z gradnjo novega mostu preko Ljubljanice pri
osrednji ljubljanski tržnici. Žal so morali najprej posekati 4 topole
na desni strani in močno brezati že tako redke lipe na levi strani
reke, ter najlepšo in največjo zdravo lipo, kljub trditvam, da bo
ohranjena, posekali. Tudi most je nekaj višji od načrtov, po katerih
bodo vsa drevesa nadomestili z novimi. Avgusta 2012 so morali zamenjati 4 od 40 steklenih plošč, držal ob stopnicah pa še vedno niso namestili. V začetku leta 2013 so ponovno postavili ograde na mostu. |
|
![]() ![]() ![]() ![]() |
|
| Za pravoslavno cerkvijo so v letu 2009 začeli graditi prostore za paroha, verouk in knjižnjico. Žal so spet naknadno dovolili, da se objekt gradi brez predvidenih garaž. | |
![]() ![]() ![]() ![]() |
|
| Ob Vilharjevi podjetje Tridana gradi poslovno - stanovanjski kompleks s 72 m visoko stolpnico. Več o projektu na http://www.situla.eu/ |
|
![]() ![]() ![]() ![]() |
|
| Na Prulah so leta 2007 podrli prostore nekdanje tovarne otroških vozičkov Tribuna in začeli graditi nov objekt. Po zastojih se je gradnja leta 2011 nadaljevalain naslednje leto zaključila. Več na http://www.kraskizidar.si/default.asp?id=1475 | |
![]() |
|
| V letu 2012 so pričeli s prenovo in nadzidavo študentskega doma visoke šole za zdravstvo. |
|
![]() ![]() |
|
| Med Metelkovo in Maistrovo nastaja muzejski kompleks. V letu 2010 so začeli z rekonstrkcijo zgradbe na Maistrovi v Muzej sodobne umetnosti. Urediti je potrebno še severni del "Metelkova mesto". | |
![]() ![]() ![]() ![]() |
|
| Ob stari urgenci kliničnega centra so leta 2009 začeli graditi novo s helioportom, ob Meksiku pa v letu 2010 novo garažno hišo. 2012 so dokončali tudi prizidek k Meksiku na vzhodni strani, kjer je Lekarna Ljubljana odprla dežurno poslovalnico namesto tiste na križišču Njegoševe in Prisojne. | |
![]() ![]() |
|
|
Na Bohoričevi je Lesnina zapuščene hiše, kjer so se zbirali narkomani,
porušila in na njihovem mestu spomladi 2010 začela graditi nove
vila
bloke. Več na http://www.vilevodmat.si/ |
|
![]() ![]() |
|
|
Hiše, kjer je pred vojno bila tiskarna Kleinmayer & Bamberg, po tem
pa RTV, ni več. Na njenem mestu so v začetku leta 2009 začeli
graditi novo Hišo - Dalmatinko. |
|