INFORMACIJSKE ZLOŽENKE ČSC
STATUT
PREDLOGI MESTNEMU SVETU
POROČILO O DELU
NAČRTOVANI POSEGI
NAZAJ NA ZAČETEK

 ČETRTNA SKUPNOST CENTER
               MESTNE OBČINE LJUBLJANA
               Štefanova 9
               tel.:  252 75 07
               faks: 252 75 08
               e-pošta: mol.center@ljubljana.si

 

NEKATERI NAČRTOVANI POSEGI V PROSTOR ČETRTNE SKUPNOSTI CENTER (neuradni)

  V nadaljevanju je 110 fotografij in načrtov, ki jih lahko povečate, če kliknete na fotografijo (Hyperlink).
Načrti so neuradni, informativnega značaja.
 


Po predlogu prostorske vizije dolgoročnega razvoja mesta Ljubljana 2025 je predvidenih 93 posegov.
V četrtni skupnosti Ljubljana Center je predvidenih naslednjih 20 investicij:

2009
15. Stavba Šumi

2010
16. Umetniške akademije
20. Mestni arhiv Cukrarna
22. Nova upravna stavba MOL + UEL
23. Novo mestno kopališče Ilirija
24. Narodna in univerzitetna knjižnica 2
25. Podzemna garaža Kongresni trg glej pridobitve
30. Potniški center Ljubljana
31. Preureditev centralne Tržnice
33. Severna vrata Bavarski dvor (Inštitut CABA makroregija)

2012
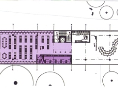
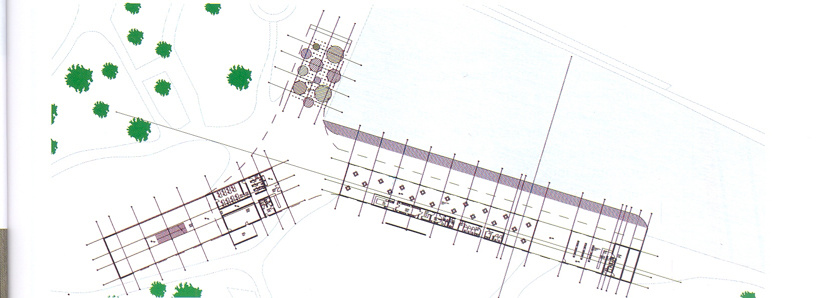
46. Center sodobnih umetnosti Rog
50. Kulturno poslovni center Kolizej
56. Ureditve in mostovi na Ljubljanici

2015

65. Mestna železnica – tramvaj
71. Prenova Tivolija
73. Razvojno območje Poljane
76. Vzidava Ajdovščina
77. Zazidava Tivolska

2020
83. Poglobitev železnice
86. Prenova mestnega središča

  Nekatere načrtovane novogradnje od leve: Potniški center, nova MOL, Severna vrata, pozidava med Tivolsko in železnico, Ilirija, Kolizej, pozidava za Kompasom med Nazorjevo in Ajdovščino, Južni trg, Šumi in NUK.

Načrtovane izvedbe mestnih projektov v mestnem središču 2011
Kongresni trg + podzemna garaža glej pridobitve
•Notranji obroč Roška-Njegoševa + Fabianijev most glej pridobitve
•Preureditev Petkovškovega nabrežja glej pridobitve
•Obnova stavbnih lupin LMM
•Otroška igralnica v Mali ulici glej pridobitve

 Načrt za izgradnjo garaže pod igriščem na Zarnikovi ulici.


  Po zaključku izgradnje notranjega obroča cest z mostom pri Cukrarni, je predvidena zapora Slovenske ceste med Šubičevo in Gosposvetsko za motorni promet, razen za javni prevoz.



 Med parkom pred kolodvorom in Slomškovo ulico načrtujejo Kolodvorski bulvar.
  Po prenovi Opere, bodo porušili južni prizidek Drame in zgradili nov večji. Lahko pa bi se Drama razširila v sosednji Šumi namesto predvidenih kinematografov, ki jih drugje zapirajo.
 Zaradi izgradnje notranjega cestnega obroča so nastali tudi načrti na mestu bivše medicinske fakultete.
  Stari Šumi so že podrli in na njegovem mestu načrtujejo izgradnjo ogromne nove zgradbe s kinodvoranami in stanovanji. Malo je javnega programa v pritličju odprtega proti Slovenski cesti in izhod iz podzemne garaže, ki je pre majhna, je neustrezeno načrtovan. Namesto kinodvoran, ki so polprazne, bi lahko umestili novo Dramo.
  Pod tržnico naj bi zgradili manjšo garažno hišo in dozidali Mahrovo hišo. Več na: http://www.ljubljana.si/si/aktualno/predvolilni_projekti/parking_trznica/porocilo_natecaj/default.html
  Tudi pod novim kopališčem Ilirija naj bi zgradili podzemno garažo.
  Tudi pred Gruberjevo palačo- Arhivom, načrtujejo izgradnjo garažne hiše.

  Med Kongresnim trgom in Knafljevim prehodom načrtujejo izgradnjo južnega trga s spomenikom Vsem žrtvam vojn.
  Hotel Slon včeraj, danes in jutri.
  V Ljubljani načrtujejo kar nekaj stolpnic, največ v Centru.
  Na Bavarskem dvoru nasproti Kozolca so porušili staro zgradbo in bodo zgradili novo stolpnico - levo krilo severnih vrat, na desni pa so prestavili glavni kolektor s komunalnimi vodi za novo stolpnico - desno krilo severnih vrat v mesto. Ob tem so zožali Slovensko cesto za en vozni pas. Več na: http://www.arhiforum.si/natecaji/bavarski/u_22901.htm
  Avtobusna postaja je sramota glavnemu mestu države. Že nekaj let načrtujejo novo potniško postajo. Ob tem bi lahko hkrati poglobili železnico in nacrtovali nove objekte v ravnini. Ob tem se postavlja tudi vprašanje, koliko bo v novi Emoniki javnega programa. Več na http://www.emonika.si/


  Več o gradnji na območju Veletekstila ob Masarykovi na http://www.skyscrapercity.com/showthread.php?t=740248

  Ob Masarykovi načrtujejo izgradnjo nove stavbe za potrebe sodišč
 Žal Kolizej verjetno ne bo več zaščiten kot zadnja konjušnica v Avstro Ogrski in ga ne bodo prenovili z dvoranami za kulturne namene, temveč ga bodo podrli in na njegovem mestu zgradili novo ogromno zgradbo v kateri naj bi po načrtih bila velika koncertna dvorana. Avgusta 2011 so začeli z rušenjem. Jeseni 2014 bo Mestni svet sprejemal nov prostorski načrt z manjšimi gabariti. Več na http://www.kolizej.com/
  RTV hišo na Komenskega so podrli in na njenem mestu bodo zgaradili novo z uvozom v njihove garaže.
  Nova Narodna in univerzitetna knjižnjica že vrsto let čaka na realizacijo. Vlada oz. Ministrstvo za visoko šolstvo pripravlja razpis za nove načrte. Preko Slovenske ceste bi jo lahko povezali s Filozofsko fakulteto - Južna vrata. Izbrana je bila rešitev arhitektov Bevk Perović
  V ROGu ne bo umetniških akademij in čaka na prenovo v CENTER SODOBNE UMETNOSTI. Več na: http://www.secondchanceproject.si/
  Julija 2013 je potekala javna razprava o spremebah Odloka o prenovi Roga, ki predvideva fazno gradnjo (najprej prenova objekta stare tovarne in njen severni prizidek).Ob tem predvidevajo zmanjšanje števila parkirnih mest za 10-krat in odpravo prehoda na vzhodni strani, ki je že danes mogoča.
  Na Poljanskem nabrežju načrtujejo izgradnjo Akademij.

V okviru seminarja študentov arhitekture Urbane plombe, je nastala tudi ideja za knjižnjico na Novih Poljanah - arhitektura za ljudi.

V okviru seminarja študentov arhitekture Urbane plombe, je nastala tudi ideja za nov športno - kulturni center na Poljanah.

V okviru seminarja študentov arhitekture Urbane plombe, je nastala tudi ideja za vsaditev kulture v staro mestno tkivo.

V okviru seminarja študentov arhitekture Urbane plombe, je nastala tudi ideja za objekt Y v parku Tivoli na mestu čolnarne.

V okviru seminarja študentov arhitekture Urbane plombe, je nastala tudi ideja za hišice na drevesih pri Osnovni šoli Majde Vrhovnik.
  Med Tivolsko cesto in želežniško progo je tudi predvidena pozidava.
  V Galeriji Kresija je bila od 12. 1. do 1. 2. 2009 na pobudo Društva arhitektov Ljubljana razstava Preteklost za prihodnost.  Vabljena arhitekturno urbanistična preveritev možnosti umestitve Mestne uprave MOL, Upravne enote RS in Pokrajinske uprave v kompleks Cukrarne z istočasno ohranitvijo garažne hiše arhitekta Savina Severja
  V načrtih je prenova mostu pri bivši Pletenini, prestavitev brvi v podaljšku Potočnikove in prenova ribje brvi med Gerberjevim stopniščem in ribjim trgom.

Načrtovana gradnja na mestu nekdanje Tobačne tovarne se nas dotika le na severovzhodu Podrobnega občinskega načrta za ta predel. Več na http://www.imos.si/aktualno/tobacna_mesto
  Čim prej se je potrebno lotiti izgradnje tramvajskih prog.
  Nova vladna palača.