 |
| Med Zarnikovo in
Poljansko smo še v prejšnjem mandatu, uredili in ogradili otroško
igrišče, ki smo ga v začetku leta 2007 odprli za naše najmlajše. |
 |
|
Marca 2008 so po večletnih prošnjah, končno posuli s peskom blatno
uhojeno potko na zahodni strani Ambroževega trga. Ker se je potka malo
posedla, je potrebno nasuti še nekaj peska, da ne bi nastajale luže. |
   |
| Na predlog četrtne skupnosti se je,
za varnejši izvoz s parkirišča na Trubarjevi
ulici, v letu 2008 postavilo ogledalo, dolgoročno pa bi bilo smiselno porušiti lihe hišne številke na levi in
odpraviti ožino. |
   |
|
V letu 2008 je bila v okviru "malih del" četrtne skupnosti obnovljena spominska
plošča na Poljanski cesti na "Rdeči hiši", v letu 2009 pa spomenik na
Poljanah. |
  |
Po večletnih prizadevanjih, so v letu 2009 v športnem parku na Poljanah v okviru malih del četrtne
skupnosti postavili pitnik, naslednje leto pa fitnes napravo.
|
   |
|
Ljubljana je v letu 2010 bogatejša za tri nova spominska obeležja in
sicer demonstrantkam med 2. svetovno vojno na Pogačarjevem
trgu, županu Ivanu Hribarju na Bregu v izteku Novega trga in
slovenskim protestantskim piscem v Parku slovenske reformacije. |
 |
| Ob
500-letnici
rojstva Primoža Trubarja, so njegovo hišo na Ribjem trgu 2 obeležili
kot kulturni spomenik in v njej je v letu 2010 v stanovanju, ki
ga je že pred leti odkupila občina, odprla vrata Trubarjeva hiša
literature v okviru "Ljubljana Svetovna prestolnica knjige". |
  |
| Na tržnisi so zamenjali še zadnje bolne kostanje z novimi. |
 |
| Po
prenovi Poljanskega nasipa so ponekod še vedno manjkale rešetke okrog
dreves. Na pobudo četrtne skupnosti v letu 2010 urejeno. |
 |
| V jeseni 2010 so pričeli obnavljati ne tako davno zgrajen vhod v Pravo fakulteto (bivša tiskarna) |
    |
| Stopnice
v lasti poslovnih prostorov na Čopovi so bile že dlje časa poškodovane.
Maja 2010 so jih začeli temeljito obnavljati in julija so zgradili tudi klančino. |
  |
| Steza med hišama na Poljanski 9 in 11 je hudo potrebna popravila. Poleti 2009 tlakovano. |
  |
|
V začetku meseca decembra 2009, so pričeli s preurejanjem
Ključavničarske steze med Mestnim trgom in Cankarjevim nabrežjem. Odtok
po sredini steze krasi 1000 glavic Jakova Brdarja. Lahko bi ga prekrili
s prozorno pohodno ploščo. |
  |
|
V začetku leta 2010 so po opozorilu četrtne skupnosti, namestili vrata
na nevarnem mestu ob Ljubljanici na Gallusovem nbr. |
        |
|
Februarja 2010 so pričeli graditi brv pri Rdeči hiši in ga še v istem
letu odprli. Žal novi privez za ladje ob mostu ne deluje in je večino
časa poplavljen. |
 |
|
Okoljski merilni sistem MOL so leta 2009 izpred Figovca ob Slovenski cesti,
prestavili na križišče Vošnjakove in Tivolske ceste. Več na http://envirtest.eimv.si/MONITORING.HTM |
   |
| Barako
še od gradnje RTV izpred mnogih let so oktobra 2009 na
zahtevo MOL končno porušili. Prostore bo RTV nadomestila z novogradnjo na Komenskega. |
  |
| V zaščitenem krajinskem parku Tivoli so leta 2008 začeli graditi adrenalinski park. Na protest
Četrtne skupnosti, so nam iz Oddelka za urejanje prostora sporočili, da
nasprotujejo gradnji. Leta 2009 so nastavke odstranili. |

|
| V torek, 27. 10. 2009, so na
Trgu narodnih herojev odkrili doprsni kip Staneta
Kavčiča. |
    |
| V mesecu oktobru 2009 so pričeli z urejanjem parkirišč za prebivalce z območij za pešce ob Mali ulici. |
    |
|
Na pobudo četrtne skupnosti so v letu 2008 začeli z obnovo Hrvatskega
trga po Plečnikovih načrtih, ki je pravzaprav park in so ga 22.
aprila 2009 svečano odprli. |
  |
| Dne 11. 11. so odprli prenovljen predor pod grajskim gričem. |
     |
| Konec avgusta 2009 so začeli prenavljati komunalno infratrukturo Pod Trančo in na Stritarjevi, ki je
sedaj lepo tlakovana, vendar bi kroge lahko bolj povdarili z npr.
barvno nianso kock. Na Vodnikovem trgu so odkrili Klošterska vrata in v letu 2010 bogato ohranjen grob Auerspergov. |
 |
| V bivši lekarni na Gosposvetski 4 so oktobra 2009 odprli dnevni center za starejše. Več na http://www.mzu.si/dca/ |
  |
| Pred RTV SLO so fantka s piščalko začasno zamenjali s Styrio iz Gradza, kjer so v parku razstavili naš kip. |
 |
|
V bivši Pionirski knjižnjici na Komenskega 9, ki se je skupaj s
Knjižnjico Otona Župančiča preselila v bivšo trgovsko hišo Markus na
Ajdovščini, je Pionirski dom odprl Art center. Več na http://www.pionirski-dom.si/Default.aspx |
 |
|
17. februarja 2009 je župan Zoran Janković odprl nove sanitarije
prirejene tudi za invalide in previjalnico za dojenčke v zgradbi
Kresije na Pogačarjevem trgu. |
 |
|
V Četrtni skupnosti Center je 23 pasjih kontejnerjev: Tivoli -
Jakopičevo sprehajališče (5), Miklošičev park, Park Slovenske
reformacije, Kongresni trg, Kolodvorski park, Park Tabor, Ljubljanski
Grad (4), Poljane, Poljane - srednja medicinska šola, Prešernova pri
Cankarjevem domu, Ambrožev trg, Strossmayerjeva, Nove Poljane (2),
Prijateljeva, Tabor - Vidovdanska, |
 |
| V
Miklošičevem parku so v letu 2009 ponovno prenovili vremensko hišico,
ki jo je leta 1962 postavilo Turistično društvo Ljubljana. Sedaj so v
njem razstavljeni stari meteorološki inštrumenti. |
  |
|
V letu 2009 so pričeli z usposabljanjem podhoda pod Vilharjevo cesto v
podaljšku podhoda pod železniško postajo, ki je bil grobo gradbeno
zgrajen že pred 10. leti ob rekonstrukcije Vilharjeve ceste. Odprt je bil 11. maja 2010. |
               
  |
|
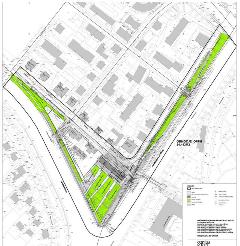
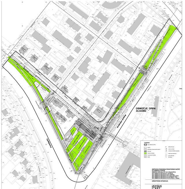
7. maja 2009 so svečano odprli brv, ki povezuje Četrtno skupnost Center
s Četrtno skupnostjo Rudnik. Ob urejenju območja celotne Špice, so
pozimi leta 2010 odkrili 4500 let staro kolišče. Uredili so tudi dostop na Špico s Prulskega mostu. |
   |
| Poleti 2009 so končno prenovili Makalonco. Žal kljub obljubam brez pristanišče za ladje, za kar jo je Plečnik načrtoval. |
             |
|
Po zamenjavi komunalnih vodov in vgradnji podzemnih zbiralnikov
odpadkov, so v maju 2009 začeli celovito urejati Breg. Mogoče bi lahko
zasadili več zelenja in le upamo lahko, da novo pot ob Ljubljanici ne
bo zasedel gostinski vrt, kot tisto, ki jo je uredil Plečnik. |
  |
| Jeseni leta 2010 so zgornji del vodnjaka s Krekovega trga spet združili z obnovljenim na Novem Trgu. |
    |
| Dne 22. julija 2009 je župan Zoran janković odprl prenovljen podhod v Tivoli pri Moderni galeriji. |
 |
| Dne 24. novembra 2009 so odprli prenovljeni steklenjak v Tivoliju, kjer bo sedaj ponovno prodajali razstline. |
      |
| Na mestu dveh starih hiš ob Hradetskega cesti so v letu 2008 začeli graditi Hospic. |
      |
|
V letu 2009 so pričeli s prenovo palače Urbanc. Žal so ob tem
posekali drevesa ob Trubarjevi ulici, zadnjega brez potrebe. |
    |
|
Sredi leta 2009 so končno pričeli s prepotrebno prenovo "Kozolca" na
Slovenski cesti 53. Aprila 2010 so začeli odstranjevati gradbene odre in šele leta 2012 dokončali tudi stranski fasadi. |
 |
| Na parkomate so v začetku leta 2009 namestili sončne celice. |
 |
| V Argentinskem parku so, ne da bi sploh obvestili četrtno skupnost, odstranili kakih 250 m2 zelenice
in grmovja in v začetku leta 2008 zgradili lesen podest, ki bi ga lahko
postavili na sosednjo veliko že tlakovano ploščad namesto na zelenico. |
    |
| V soseščini so v Parku Reformacije začeli spomladi 2008 urejati otroško
igrišče, jeseni pa še pot preko parka. |
   |
| V juniju 2009 so začeli obnavljati poti v parku pri spomeniku ilegalcu. |
  |
| Na Petkovškovem nabrežju marsikje manjka ograja in ni niti enega
koša za smeti. Jeseni 2009 so postavili novo ograjo. |
   
|
| Stari Robbov vodnjak so restavrirali in leta 2008 namestili v novo
Narodno galerijo, replika pa že od leta 2007 stoji na starem mestu |
     |
|
Obnova gradu še ni končana, ko ga že morajo popravljati. Tudi okolico
gradu so za obisk angleške kraljice končno začeli urejati in speljali
novo pot po obstoječih starih stebrih. Bolje bi bilo, če bi bila brez
stopnic, ki so nerodno nizko razporejene, manjka še povezava s
ploščadjo pred servisnim vhodom. Le še nekaj dreves bi
morali obrezati, da bi se Grad bolje videl in da bi bil lepši razgled z
njega. Ob vznožju gradu bi morali na začetku Rebri in Študentske ulice bolje označiti pot na Grad. |
  |
| Leta 2005 so začeli graditi vzpenjačo na Grad, ki so jo odprli pred Novim letom 2007. |
  |
|
Na Hudoverniki so pred vrtcem, na pobudo četrtne skupnosti, postavili
količke tako, da sedaj tam avtomobili ne morejo več parkirati. |
 |
| Pol leta 2008 je bila Zemljemerska cesta zaradi del zaprta, sedaj pa je lepo urejena. |
 
|
|
Na območju bivše klavnice sta v letu 2008 zrasli trgovini Hofer in
Mercator, ki sedaj zadovoljujeta ponudbo v novem naselju, pa tudi širše. |
    |
Po večletnih prizadevanjih četrtne skupnosti, so v letu 2008 le začeli prenavljati most preko Gruberjevega kanala.
|
   |
| V letu 2008 so na Mestnem trgu uredili komunalne vode in obnovili tlake, v letu 2009 pa na Ciril Metodovem trgu |
     |
V
letu 2007 so na Prešernovem trgu odstranili stara drevesa, ga na novo
tlakovali in posadili nova drevesa.
Žal je kavarna Tromostovje zasedla preveč javnih površin.
Po zapori Wolfove ulice 1.10. 2007 zaradi prenove, so začeli
prenavljati tudi Prešernov trg. Žal ob tem niso vgradili talnega
ogrevanja, pa tudi polnjenje presledkov med kockami niso izvedli
kvalitetno. |
   |
| Wolfovo ulico so v letu 2007 povsem prenovili in zasadili nekaj dreves. |
  
|
| V podhodu Ajdovščina dolgo niso delale tekoče stopnice, v letu 2007 so ga temeljito obnovili. |
   
|
| Tudi Plečnikov podhod v
katerega je zamakalo, so leta 2007 temeljito obnovili. |
     |
|
V centru mesta gradijo potopna zbirna mesta za ločeno zbiranje
odpadkov, ki bodo zamenjale množico smetnjakov, ki kazijo okolico in
zavzemajo dragocen prostor. V letu 2007 so jih zgradili na Cankarjevi 2 (na fotografiji jih zakopavajo), na Mali ulici (samo za ostale in biološke odpadke) in Rožni ulici, v letu 2008 na:
Miklošičevi 7, Mestnem trgu, Trgu Francoske
revolucije, Trubarjevi 19 (samo za ločene odpadke), Cankarjevem nabrežju (samo za ostale in biološke odpadke) in Levstikovem trgu. V
delu sta še dve lokaciji: Trg francoske revolucije in Resljeva 1, v načrtu pa še tri: Čopova ulica,
Breg 2 in 22. Pred uvedbo novega načina zbiranja in odvoza odpadkov, bo
o tem s posebno
brošuro obveščeno vsako gospodinjstvo, ki bo dobilo elektronsko kartico
za odpiranje potopnih smetnjakov za ostale in biološke odpadke. Žal so
nekatere odprtine npr. za embalažo premajhne in je potrebno vsako
posebej potisniti v zbiralnik. |
|
| Ob predsedovanju Slovenije Evropski uniji v letu 2008, so na križišču Dunajske in Tivolske postavili Hologram Evrope. |
               |
|
Vilo za Opero, bife in bukev ob njej so v letu 2007 porušili in skopali
ogromno gradbeno jamo za nov prizidek, v letu 2008 pa že dobiva nove
večje in višje obrise. 2009 so začeli izkopavati nove kletne prostore
za večji foaje pod starim delom Opere. |
   |
| Tudi Moderno galerijo so začeli v letu 2008 prenavljati in jo konec leta 2009 svečano odprli. |
 |
| V okviru akcije
"Ljubljana moje mesto" je bilo obnovljeno že veliko fasad, pred
predsedovanjem Evropski Uniji pa je mesto še povečalo
število obnov. Upajmo, da bo končno spet
odprta terasa na nebotičniku. |
 
|
| Tudi sodišče so v letu 2008 obnovili. |
  
|
| Stolpnico
na koncu
Štefanove, ki je bila več let ograjena zaradi nevarnosti
odpadanja plošč, so končno začeli leta 2007 obnavljati in v letu 2008
obnovili, leta 2009 pa odstranili še ograjo. |
       
|
|
Na Hribarjevi hiši na Tavčarjevi, ki je razglašena za kulturni spomenik
lokalnega pomena, so v letu 2008 prenavili pročelje, prav tako na
Slovenski cesti 51, na Prešernovi kar nekaj hiš, na Kongresnem
trgu Khamovo hišo, Komenskega 10,... |
 
|
| Na Novih Poljanah ob
Gruberjevem kanalu je v letu 2006 zraslo novo naselje, ki je povečalo število prebivalcev
četrtne skupnosti in še ni povsem komunalno opremljeno. |
 
|
| Ob Poljanski je leta 2007 zrasla
nova stanovanjska zgradba. |
   
|
| Stari del
hotela Turist je bil že več let zaradi potresne nevarnosti zaprt. Leta 2006
so ga porušili, naslednje leto pa so že odprli nov hotel City z nekaj podzemnimi garažami. |
 
|
| Bivšo Triglavsko restavracijo so preuredili za potrebe sodišča, leta 2007 pa so ga še nadzidali. |
 |
| Tudi Lutkovno gledališče so v letu 2007
nadzidali, v letu 2009 pa zgradili še zunanje dvigalo. |
  
|
| V območju
Kliničnega centra so zgradili Nevrokirurško kliniko,
Onkološki inštitut in Pediatrično kliniko. |
  
|
| Na Vodmatu, ob Bohoričevi ulici, je leta 2007-08 nastala nova soseska - razgiban blok s tremi nadstropji. |

|
| Uršulinski samostan so
leta 2007 temeljito prenovili. |
  
|
| Ob "Kapitlju" je leta 2008 zrasla še
"Villa Urbana". |
  
|
| Ob zaključku
izgradnje Ville Urbane, so v začetku leta 2008 začeli prenavljati tudi Poljanski nasip. Cesta bo v bodoče dvosmerna na
račun parkirišč ob Ljubljanici, kjer je sedaj pločnik. |
 |
| Nazorjevo ulico so prenavljali že vrsto let. V letu 2008 so ponovno
postavili betonske in lesene klopi ter tudi na nasprotni strani posadili drevesa. |
    |
| Ob Njegoševi cesti nasproti UKC so leta 2007 skopali ogromno gradbeno
jamo in v letu 2008 zgradili novo poslovno - stanovanjsko zgradbo. |
    
|
| Na Petkovškovem nabrežju ob Ljubljanici so konec leta 2007 zgradili razgledno ložo. |
 |
| Resljevo so leta 2006 prekopali in na novo asfaltirali, leta 2007 pa dokončno uredili in ob
njej posadili drevesa in grmičevje in jih zaščitili s
količki. V letu 2008 so postavili količke tudi na spodnjem koncu ulice. |
   |
| Ob Zaloški so
podrli bivšo tovarno Pletenina, da bodo lahko zgradili nov širši most. |
  |
| Pri Univerzitetnem kliničnem centru so v letu 2006 zgradili prvo garažno hišo. |
  |
| Potem, ko je bil Karlovški most več let zaprt, so ga leta 2006 temeljito prenovili in svečano odprli. |
 
|
| Ploščad okoli Maksimarketa so v letu 2007 temeljito obnovili. |
|