ARHIV - ARHIV - ARHIV - ARHIV - ARHIV - ARHIV - ARHIV
Prehrana Novice
Obvestila

 

Šolsko leto 2003/2004
Šolsko leto 2004/2005

Šolsko leto 2005/2006
Šolsko leto 2006/2007



OBVESTILO

Seznam gradiva za šolsko leto 2006/2007 urejen po razredih: .


Spoštovani starši bodočih prvošolčkov,

veseli smo, da ste se odločili vključiti svojega otroka v Osnovno šolo Spodnja Šiška. Vabimo Vas na

PREDSTAVITEV DELA V 1. RAZREDU DEVETLETKE,

ki bo v ponedeljek 29.05. 2006 ob 17.00 uri

 v knjižnici Osnovne šole Spodnja Šiška na Gasilski 17.

aaaaaaaaaaaaaa

Na srečanju boste spoznali bodoče učiteljice in vzgojiteljici, katere Vam bodo predstavile program šole, organizacijo pouka, šolski koledar in elemente Montessori pedagogike.

Naše druženje bo namenjeno tudi drugim temam v zvezi s potekom pouka v devetletki, ki bi vas ob vstopu vašega otroka v 1. razred utegnile zanimati. Zato so vabljeni tudi vsi ostali starši, ki jih zanima delo naše šole.

Veselimo se srečanja z vami!

 


OBVESTILO

Pogovor s policistom o nasilju in drugi problematiki mladostnikov bo 18. 5. 2006 ob 17.00 v šolski knjižnici.

AAAAAAAAAAAAAAAAAAAAAAAAAAAAAAAAAAAAAAAAAAAAAAAAAAAAAAAAAAAAAKatja Arzenšek, ravnateljica


 

Dobrodelna prireditev DAN ŠIŠKE

Datum : četrtek, 1. junij 2006 od 17.00 do 20.00

Cilja:
-
zbiranje denarja za prenovo šolskega igrišča;
- družabno srečanje sedanjih in bivših učencev, učiteljev, staršev in krajanov Šiške.

Organizacija in vodenje : Upravni odbor Sklada za obnovo šolskega igrišča, ki ga sestavlja 6 staršev in 6 učiteljev.

Svet šole je 28.2.06 sprejel odbor Sklada.

Zbiranje denarja:
- donatorska sredstva , ki jih podjetja nakazujejo v Sklad za obnovo šolskega igrišča;
- darovani predmeti in storitve se bodo vključili v srečelov.

Program:

Program bo sestavljen iz različnih nastopov otrok, učiteljev in staršev. Nastopile bodo tudi glasbene gostje:
aaaaaaaaaaaaa - Alenka Godec,
aaaaaaaaaaaaa - Nuša Derenda,
aaaaaaaaaaaaa - Romana Krajnčan.

Razglasili bomo športnico in športnika šole.

Program bo potekal od 17.00 – 19.30.

Povezovalca programa bosta Jure Sešek in bivša učenka Taja Pogorelčnik.

Med programom bomo imeli srečelov z bogatimi nagradami.

Na stojnicah bomo prodajali otroške izdelke, ki jih bomo naredili iz odpadne ali podarjene embalaže.

Hrana in pijača:

Gostje se bodo lahko posladkali z dobrotami naše kuhinje in se osvežili s sladoledom in brezalkoholnimi pijačami.

aa organizatorica prireditve aaaaaaaaaaaaaaaaaaaaaaaaaaaaaaaaaaaaaaaaaaaaaaaaa ravnateljica
aaaaa Tina Strnad Rot aaaaaaaaaaaaaaaaaaaaaaaaaaaaaaaaaaaaaaaaaaaaaaaaaaaa Katja Arzenšek

 

 

SLIKA SEDANJEGA IGRIŠČA:

aaaaaaaaaaaaaaaaaaaaaa

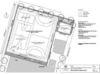
NAČRT NOVEGA IGRIŠČA:

aaaaaaaaaaaaaaaaaaaaaa

NAČRT IGIŠČA ZA NAJMLAJŠE:

aaaaaaaaaaaaaaaaaaaaaaaaaaaaaaa

 

Posredujemo vam donatorsko pismo, v katerem prosimo podjetja ali posameznike, da nam prispevajo denar za objavo igrišča. Veseli bomo tudi izdelov ali storitev, ki jih bomo umestili na srečelov.
Ves izkupiček denarja na prireditvi bo namenjen v Sklad za obnovo igrišča.

Donatorsko pismo

 


 

OBVESTILO

Tretji predmet nacionalnih preizkusov znanja je biologija in se preverja 8.5. 2006.



OBVESTILO

Dramski krožek bo od 27. 2. 2006 ob ponedeljkih 7.šolsko uro.


IZVEDBENI NAČRT ŠOLE ZA NPZ

KOLEDAR:

15. 3. 2006

Objava 3. predmeta, iz katerega bodo učenci 9. razreda opravljali npz

20. 3. 2006

Dopolnitev podatkov Ricu o uveljavljanju pravic učencev s posebnimi potrebami pri opravljanju 3. predmeta na NPZ ob koncu tretjega obdobja

30. 3. 2006

Ravnateljica imenuje učitelje, ki bodo vrednotili NPZ, in pošlje seznam učiteljev na OE ZRSŠ

4. 4. 2006

Aktivi ravnateljev – informacije o NPZ

14. 4. 2006

Informacije Rica, sestanek z učitelji, ki so podpisali izjave o delu s tajnim gradivom (šifre, testi)

24. 4. 2006

Objava razporeda učencev in določitev nadzornih učiteljev za redni rok NPZ

25. 4. 2006

Objava naslovnic preizkusov za redni rok na eRicu

5. 5. 2006

- sestanek ravnateljice z nadzornimi učitelji, ki bodo sodelovali pri NPZ

- slovenščina – REDNI ROK

- dostava gradiva na RIC

8. 5. 2006

- sestanek ravnateljice z nadzornimi učitelji

- tretji predmet – REDNI ROK

- pobiranje gradiva in dostava na RIC

9. 5. 2006

- sestanek ravnateljice z nadzornimi učitelji

- matematika – REDNI ROK

- pobiranje gradiva in dostava na RIC

10. 5. 2006

Vrednotenje – redni rok – slovenščina

11. 5. 2006

Zadnji rok za posredovanje podatkov o učencih, ki se zaradi bolezni ali drugih utemeljenih razlogov niso mogli udeležiti NPZ v rednem roku

12. 5. 2006

Vrednotenje tretji predmet – redni rok

15. 5. 2006

- podatki o učencih, ki se bodo udeležili naknadnega roka

- vrednotenje matematika – redni rok

18. 5. 2006

Informacija na šole o dostavi gradiva

22. 5. 2006

Objava razporeda učencev in določitev nadzornih učiteljev za naknadni rok

25. 5. 2006

Ric posreduje šolam ovrednotene naloge z dosežki učencev pri NPZ v rednem roku. Šola sporoči morebitne nepravilnosti

26. 5. 2006

Dostava gradiva za naknadni rok

Seznanitev učencev z dosežki in uveljavljanje pravice učenca do vpogleda v učenčeve ovrednotene pisne naloge NPZ

29. 5. 2006

Možnost poizvedbe na OE ZRSŠ od 9. do 13. ure

1. 6. 2006

Slovenščina – naknadni rok

2. 6. 2006

Tretji predmet – naknadni rok

5. 6. 2006

Matematika – naknadni rok

6.6.2006

Vrednotenje slovenščina – naknadni rok

7. 6. 2006

Vrednotenje tretji predmet – naknadni rok

8. 6. 2006

Vrednotenje matematika – naknadni rok

12. 6. 2006

RIC posreduje šolam ovrednotene naloge

  • seznanitev učencev z rezultati in uveljavljanje pravice vpogleda v svoje ovrednotene izdelke
  • ravnateljica sporoči število preizkusov na OE ZRSŠ, za katere bodo učenci uveljavljali pravico do poizvedbe

13. 6. 2006

Možnost poizvedbe na OE ZRSŠ

14. 6. 2006

RIC posreduje šolam spremembe dosežkov po poizvedbah za učence 9. razredov za redni in naknadni rok

15. 6. 2006

Konec pouka za 9. razred – razdelitev spričeval

18.6.2006

Ravnateljica pripravi poročilo o izvedbi NPZ s pomočjo strokovnih aktivov

 


OBVESTILO

Osnovne podatke o vpisu v devetletko in predstavitvi šole si lahko ogledate tukaj .


DAN ODPRTIH VRAT

 

 

 

Dan odprtih vrat bo v četrtek, 2.2.2006 ob 17.00 uri. Informativni center: na dan odprtih vrat pri vhodu šolo. Dejavnosti bodo potekale po celi šoli s pričetkom ob 17.00 uri.

1. NADSTROPJE
AKTIVNOSTI »ZLATI SONČEK«
V šolo pridite v športni opremi. Zloženko prinesite s seboj!

2. NADSTROPJE LEVO
AKTIVNOSTI »KRPAN«
V šolo pridite v športni opremi.

IZDELAVA SPLETNE STRANI - računalnška učilnica

UČILNICA PRI VHODU LEVO
OGREVANJE PRED PRIČETKOM VADBE

UČILNICA PRI VHODU DESNO
ROČNE SPRETNOSTI
PREDSTAVITEV IN UPORABA MONTESSORI UČIL

VEZNI HODNIK DO KNJIŽNICE
IGRANJE YO-GI-OH KART

KNJIŽNICA
ŠOLSKI ČASOPIS

JEDILNICA
PREDSTAVITEV NAMIZNIH IGER

AVLA PRIZIDKA
RAZSTAVE
LIKOVNI PRISPEVKI
LITERARNI PRISPEVKI O ŠPORTU
INTERVJUJI S ŠOLSKIMI ŠPORTNIKI
KLEPET Z VRHUNSKIMI ŠPORTNIKI
RAZSTAVA STARIH PREDMETOV
RAZGLEDNICE SLOVENSKIH MEST
RAZSTAVA »ASTERIX IN OBELIX"
DEGUSTACIJA PIJAČ

GOSPODINJSKA UČILNICA V PRIZIDKU
PRIPRAVA POGRINJKOV
SLADKI PRIGRIZEK

UČILNICA TEHNIKE V PRIZIDKU
IZDELAVA SESTAVLJANKE
POSTAVITEV KONSTRUKCIJE

UČILNICA BIOLOGIJE V PRIZIDKU
PREDSTAVITEV ŽIVALI
ZBIRKE KAMNIN
IZDELOVANJE OKOSTJA

MALA TELOVADNICA
RAZSTAVA KNJIG O ŠPORTU

VELIKA TELOVADNICA
TEKMOVANJE:
'MET TROJK'
'PET ŽOG V KOŠ'

STRANSKI VHOD V ŠOLO
ZBIRALNA AKCIJA STAREGA PAPIRJA

ob 18.00 uri:
KNJIŽNICA
OKROGLA MIZA:
»SODOBNE OBLIKE ZASVOJENOSTI IN ALTERNATIVA« z vrhunskimi športniki, s policistom, zdravnico, z učitelji, starši in otroki.

 


O B V E S T I L O

Osnovne šole na območju
Mestne občine Ljubljana

Vpisujemo v 1. razred 9-letne osnovne šole za šolsko leto 2005/2006. Vpis bo v torek, 14. 2. 2006 in v sredo, 15. 2. 2006 od 8. do 12. ure in od 16. do 19. ure.

Vpisujemo otroke, rojene v letu 2000. Praviloma vpisujemo otroke, ki imajo bivališče v šolskem okolišu.

 


STARŠI BODOČIH PRVOŠOLK IN PRVOŠOLCEV

VABILO

Pred vpisom Vaših šoloobveznih otrok Vas Vabimo na sestanek, kjer Vam bomo predstavili našo šolo in delo v prvem razredu.
Posebej Vam bomo predstavili posebnosti, ki odlikujejo našo šolo.

Naša šola že desetletje uvaja v pouk elemente Montessori šole: pripravljeno učno okolje, individualno delo in napredek učenca. Projekt je ocenil Zavod za šolstvo kot uspešen. Seveda upoštevamo obstoječo šolsko zakonodajo.

Lahko si boste ogledali učilnice, didaktične materiale, srečali boste bodoče učiteljice in vzgojiteljice Vaših otrok in se pogovorili tudi z učiteljicami, ki že dve leti poučujejo v devetletni osnovni šoli.

Predstavitev se bo začela V OŠ Spodnja Šiška, Gasilska 17, Ljubljana, v učilnicah 1.a in 1.b v prvem nadstropju šole ob 18.30 uri v ponedeljek, 30. januarja 2006.

Z veseljem Vas pričakujemo!

Opomba: Dostop do šole: avtobus št. 1, 3, 7, 5 – postaja Stara cerkev na Celovški- ena postaja za postajo Tivoli iz smeri Center proti Šentvidu. Na križišču ob postaji zavijete desno ( gledajoč od Centra proti Šentvidu) in po 100 m ste pred šolo.

 


 

Vabimo Vas na 2. Pravljično delavnico, ki bo v ponedeljek, 23. 01. 2006 ob 18.00 uri v šolski knjižnici.

Obiskala nas bo pisateljica VLADIMIRA REJC. Njena gostja bo mladinska pisateljica Nina Kokelj. Pravljična delavnica je namenjena otrokom in njihovim staršem. Delavnica je brezplačna.

 


 

 

 

 


OSNOVNA ŠOLA SPODNJA ŠIŠKA

VABI NA BOŽIČNI KONCERT

15.12.2005 OB 17.00 V CERKEV SVETEGA FRANČIŠKA V LJUBLJANI

 

PROGRAM: Uvodni nagovor Naj se izpolnijo želje (Ela Peroci) MURENČKI – OPZ:

  • Boris Vremšak: SNEŽINKE
  • Janez Bitenc: POKUKALA LUNA
  • Janez Bitenc: SPI, DETE, SPI
Zborovodkinja: ZVONKA PAVLOVIČ OPZ:
  • Avstrijska ljudska: NEŽNO ZVONOVI ZVONIJO
  • Lois Brownsey: HANUKKAH, OH, HANUKKAH
  • J.F.Händel: RADOST VSEMU SVETU
  • Črnska duhovna: O, NIHČE NE VE
DRAMSKA SKUPINA MPZ
  • Lloyd & Marci Lawson: EVERY CHILD'S PROMISE
  • Hezekiah Walker: I NEED YOU TO SURVIVE
  • Otis Skillings: ZAPOJMO VSI IZ SRCA
Vsi zbori: John Hoybye: NOVOLETNA ŽELJA Zborovodkinja: DALILA BEUS

 

 

 

 

 

 

 

 

 

 

 

 

 

 

 

Ko hodiš,

pojdi zmeraj do konca.
Spomladi do rožne cvetice,
poleti do zrele pšenice,
jeseni do polne police,
pozimi do snežne kraljice,
v knjigi do zadnje vrstice,
v življenju do prave resnice,
v sebi do rdečice čez eno in drugo lice.
A če ne prideš ne prvič, ne drugič
do krova in pravega kova
poskusi: vnovič
in zopet
in znova.

(Tone Pavček)

SREČNO IN USPEHA POLNO LETO 2006!

OŠ SPODNJA ŠIŠKA

 

 

 

 

 

 

 


VABILO - PRAVLJIČNA DELAVNICA

Vabimo vas na 1. Pravljično delavnico, ki bo v ponedeljek, 17. 10. 2005 ob 17.00 uri v šolski knjižnici. Obiskala nas bo gospa TILKA JAMNIK, knjižničarka iz Pionirske knjižnice, ki bo govorila o spodbujanju družinskega branja in nam predstavila knjige, vredne naše pozornosti.

Pravljična delavnica je namenjena otrokom in njihovim staršem. Delavnica je brezplačna.


RODITELJSKI SESTANEK

Izredni roditeljski sestanek bo 10. 10. 2005.


DRAMSKI KROŽEK

Dramski krožek je premaknjen na torek, 7. šolsko uro.


PRIJAVE

  • za raziskovalne naloge je potrebno oddati do 15. 11. 2005,
  • za Veselo šolo je potrebno oddati do 28. 10. 2005.

PRVENSTVO OŠ LJUBLJANE V JESENSKEM KROSU

Tekmovnje bo v torek, 11. 10. 2005 v Tivoliju za bazenom s pričetkom ob 13.30 uri. Učenci naj gredo na kosilo ob 12.00. Pred šolo se dobimo ob 12.40. Vrnili se bomo okoli 15.00 ure.

V šolsko ekipo so se uvrstili učenci, ki so zmagali na jesenskem šolskem krosu. Seznam lahko preberete med novicami.


PRVI ŠOLSKI DAN

 
Začetek pouka:
 
8.30: 1., 2., 3., 4. razred devetletke
 
10.00: 5. razred osemletke, 7., 8., 9. razred devetletke
 
Malico imajo ta dan v šoli vsi učenci, kosilo pa tisti, ki se bodo prijavili.
 
Učenci imajo 1. in 2. uro razredno uro, 3. in 4. uro pa pouk po urniku.
 
Za prvi šolski dan potrebujete copate in šolske potrebščine.
 
Jutranje varstvo bo potekalo od 6.30 ure do 8.30 ure v učilnici 21 v I. nadstropju.

Podaljšano bivanje bo vsak dan od 12.00 do 15.30, dežurno varstvo pa do 17.00.


ŠOLSKO GRADIVO !

Seznam gradiva za šolsko leto 2005/2006 urejen po razredih:

1. razred
2. razred
3. razred
4. razred osemletke
4. razred
5. razred osemletke
7. razred
8. razred
9. razred

 

<<-- na začetek

 

ARHIV - ARHIV - ARHIV - ARHIV - ARHIV - ARHIV - ARHIV
Prehrana Novice
Obvestila