
dr Franz Lang
Koncept gradnje modernih stanovanjskih hiš po vzoru stare ljudske arhitekture na področju vzhodne Štajerske
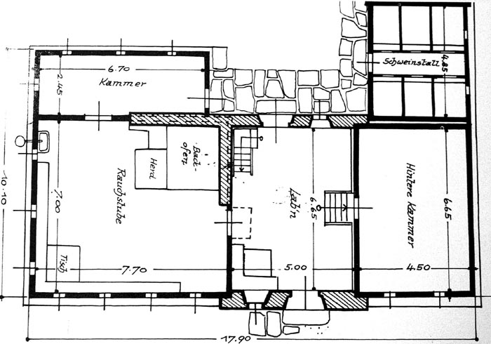
Tipična stara ljudska podeželska hiša je bila razdeljena na sredinski hodnik z dimnico, velikega predprostora in shrambe. Vse to je pokrivala podolžna srednjestrma sedlasta streha z ozkim strešnim čelom in t.i. "gangom". Pogosti so bili prizidki v desnem kotu glavne gradnje. Če človek opazuje današnje gradnje, opazi ponovno uporabo teh gradbenih idej. Tudi zunanji izgled teh hiš spominja na stare kmečke hiše. Da se avtohtona arhitektura oddaljuje od vpliva tuje arhitekture in si jemlje za zgled stoletja staro ljudsko arhitekturo, je vsekakor razveseljiv pojav, saj se tako ohranja izvirna in enkratna podoba pokrajine.
Za povečavo kliknite na sliko
Click on picture to enlarge